- 価格2,590円
- 種別新築戸建
- 所在地
- 愛知県北名古屋市六ツ師女夫越 北名古屋六ツ師7期8棟
- 交通
- 名鉄犬山線 徳重・名古屋芸大駅 徒歩25分
物件詳細
| 築年月 | 2025/10 | 新築/中古 | 新築・未入居 |
|---|---|---|---|
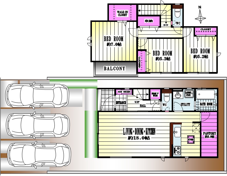
| 面積 | 94.19m² | 計測方式 | |
| バルコニー | 向き | ||
| 建物階数 | 地上2階 | 部屋階数 | |
| 部屋/区画番号 | 総戸/区画数 | 8 | |
| 建物構造 | 木造 | ||
| 敷地全体面積 | 136.32m² | 延べ床面積 | |
| 間取内容 |
|
||
| 駐車場 | 空有 並列駐車 3台可能 | 取引態様 | 仲介 |
| 引渡/入居時期 | 即時 | 現況 | 空家 |
| 地目 | 宅地 | 用途地域 | 第一種住居地域 |
| 都市計画 | 地勢 | 平坦 | |
| 建ぺい率 | 60% | 容積率 | 200% |
| 土地権利 | 所有権 | 接道状況 | 一方 |
| 接道方向1 | 西 | 接道間口1 | 7.6m |
| 接道種別1 | 公道 | 接道幅員1 | 4.3m |
| 接道方向2 | 東 | 接道間口2 | 8.5m |
| 接道種別2 | 公道 | 接道幅員2 | 6.8m |
| 周辺環境 |
師勝北小学校 熊野中学校 ナフコトミダ中央店、六ツ師保育園、クリエ幼稚園 |
||
| 設備・条件 | ガスコンロ 三口コンロ システムキッチン カウンターキッチン 独立洗面台 シャワー 浴室乾燥機 トイレ専用 バス・トイレ別 床下収納 W.INクローゼット 室内洗濯機置き場 TVドアホン 都市ガス 公営水道 排水浄化槽 法22条区域 |
||
| 物件番号 | |||
北名古屋六ツ師7期8棟
長期優良認定住宅
成約特典としてオプション工事や家電等プレセント!!
名鉄犬山線「徳重・名古屋芸大」駅 徒歩25分
並列2台駐車可能(3台目拡張可能)
2号棟 3LDK+WIC 2590万円
5号棟 4LDK+WIC+SIC 3390万円
8号棟 4LDK+WIC 2890万円
※物件掲載内容と現況に相違がある場合は現況を優先と致します。



















